يعد الاستثمار العقاري في بودروم سوق متنامي حيث ارتفعت الأسعار فيها بنسبة 30% في السنوات القليلة الماضية، وتعد منطقة جذب للعديد من المستثمرين الأجانب حيث المنتجعات و الشقق الساحرة .
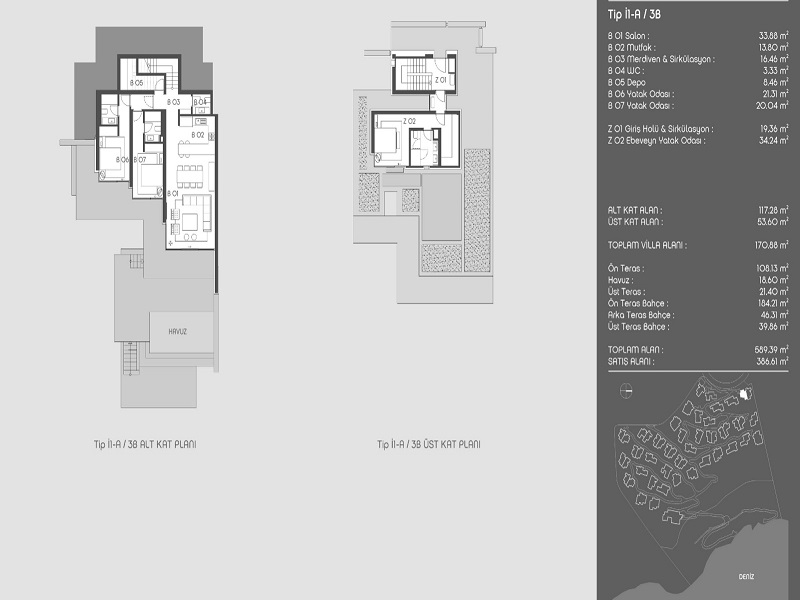
يتكون مشروع AM 12 من فلل مصممة بشكل عصري وأنيق مطلة على بحر ايجة.
مميزات مشروع AM 12:
-
يمتد المشروع على مساحة 46000 متر مربع ويتكون من 89 فيلا.
-
المشروع قيد الإنشاء و التسليم في ديسمبر 2020.
-
أنماط الفلل : لدينا أربعة أنماط للفلل : ( 1+3 )– ( 1+4 ) – ( غرفة صغيرة+1+4 ) – ( غرفة صغيرة+1+5 ).
-
مساحات الفلل : تتراوح المساحة من 382.58 متر مربع ولغاية 1707.35 متر مربع.
-
الأسعار : تبدأ الأسعار من 1.540.000 يورو.
نختار لكم افضل المشروعات العقارية في تركيا و التي حازت على الأفضلية من قبل المستثمرين العرب والأجانب على حد سواء.



